Sun City WoodWorks - Shop Layout

Sun City WoodWorks

26850 Sun City Boulevard
Sun City, California 92586
E-Mail: info@SunCityWoodWorks.com

Home Purpose Officers Membership Hours
Requirement to Sign In and Out Safety Monitors Safety Procedures Emergency / First Aide Equipment
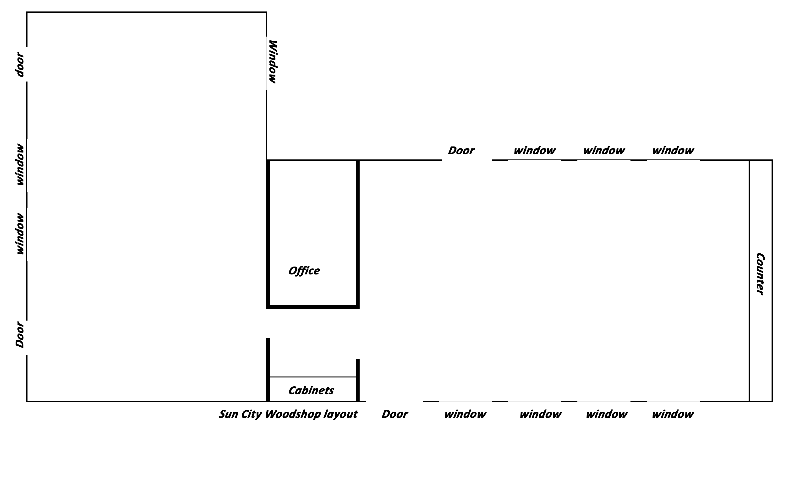
Shop Layout Materials Donations Repair Projects Sample Projects
Calender Member Mug Shots . . Provident

Sun City WoodWorks - Shop Layout

Shop Layout

Shop layout and equipment placement with Emergency Exit, Fire Extinguisher and First Aide equipment locations.

Obviously this is still a work in progress.